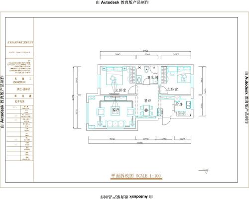
其仕盛和祥二居室83㎡现代简约装修效果图


装修效果图


装修效果图


装修效果图


装修效果图