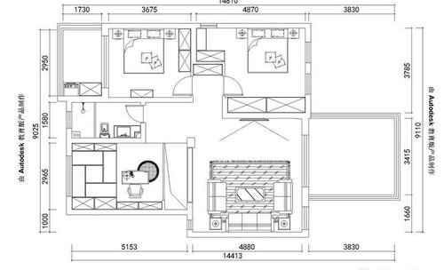
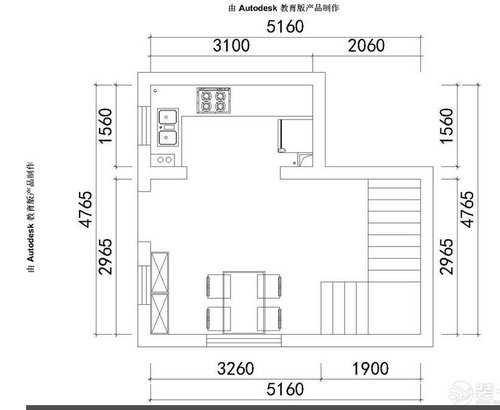
沈阳龙湖滟澜山二居室105㎡极简美式装修效果图

装修效果图

装修效果图

装修效果图

装修效果图

装修效果图

装修效果图

装修效果图


