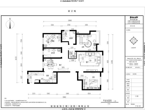
银河丽湾二期丽湾上品三居室160㎡简欧装修效果图


装修效果图


装修效果图


装修效果图


装修效果图