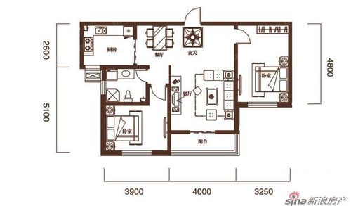
依云首府二居室100㎡现代简约装修效果图

装修效果图

装修效果图

装修效果图

装修效果图

装修效果图

装修效果图

装修效果图

装修效果图


