☎ 024-88615509 13889362065
首页
热门搜索:
智能家居
安防
物联网
首页
关于我们
产品中心
工程案例
新闻动态
服务项目
联系我们
舒适家居网 www.wuliannanjing.com
沈阳智能家居体验店欢迎您的光临!
网关设备
智能照明
家电控制
安全防护
环境调节
其他综合
健康管理
舒适家居网
>>
楼盘效果图大全
>>
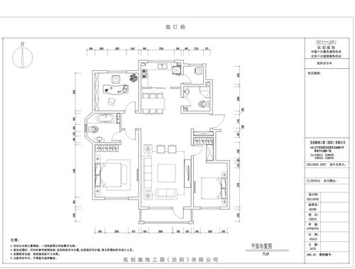
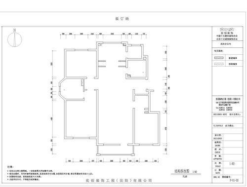
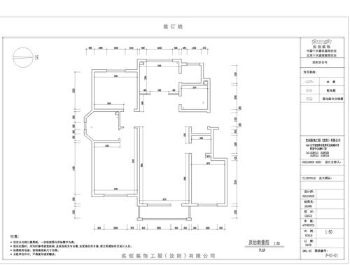
远洋和平府
远洋和平府二居室88㎡现代简约装修效果图
装修效果图
装修效果图
装修效果图
装修效果图
装修效果图